室内设计施工工艺02 - 设计师常用的40种收口方式

收口,在设计和施工当中的重要性,应该是毋庸置疑的。
除了弥补施工不足外,还有增强装饰效果的作用,而且现在的设计往往细节见真章,但收口与收边却也最易被忽略......
今天就将设计师们,经常用到的40种收口条,给大家汇总到位!
1、带定位平面收口条

带定位平面收口条,适用于地面各种材质的平面收口及分格装饰,固定方式是AB胶固定,解决传统做法“非高即低"的收口通病。
2、高低差级收口条

高低差级收口条,适用于高低级设计的地面,用螺丝钉固定,同样能解决“非高即低"的收口通病。
3、带灯槽墙身露边收口条

带灯槽墙身露边收口条,适用于饰面板带灯光的墙身设计收口,用自攻螺丝固定。
4、毛毯收口条

毛毯收口条,适用于地毯与各种地面材质之间的收口,用螺丝钉固定,尺寸规格:11(H)x 20(W)x 3000(L)、15(H)x 20(W)x 3000(L)。
5、卡式凹槽踢脚线条

卡式凹槽踢脚线条,适用于墙面饰面板的设计,需要另配饰面板。
需用发泡胶或螺丝进行固定,能满足简单的线路铺设,方便灵活,便于维修检查,同时满足收口及装饰需求。
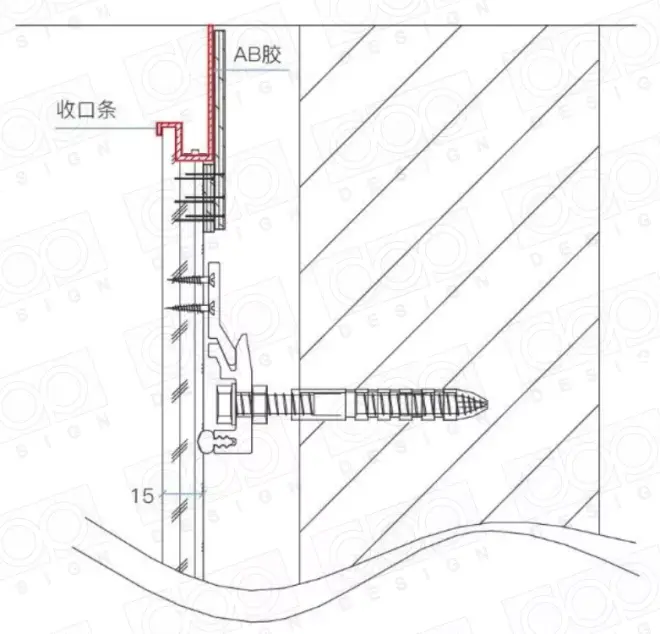
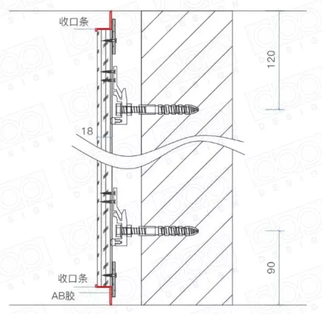
6、墙身露边收口条

墙身露边收口条,适用于墙面饰面板的收口设计,用自攻螺丝固定,尺寸规格:35(H)x 18(W)x 3000(L)。
7、带灯槽踢脚线(一)

带灯槽踢脚线,适用于地面铺大理石、地砖、木地板,墙面贴饰面板的设计,用螺丝或膨胀螺丝钉进行固定。
能完善墙身收口,同时延伸地面材料的收口功能,将收口、照明及装饰功能完美快捷地表现出来。
8、带灯槽踢脚线(二)

带灯槽踢脚线,适用于地面铺地毯、墙面贴饰面板的设计,用螺丝或发泡胶固定。
9、墙身饰面板收口条

墙身饰面板收口条,适用于墙身饰面板的设计。造型简洁,巧妙分割墙、地面,像踢脚线一样完美过渡。
10、墙身饰面板装饰条

墙身饰面板装饰条,适用于墙面饰面板留缝的设计。
11、墙身饰面板留缝收口条

墙身饰面板留缝收口条,适合墙身饰面板留缝设计与使用,适合带门的后门框收口使用,使用AB胶固定。
12、护墙板挂件

护墙板挂件,适用于各种风格的挂墙板安装,使用夹角调平膨胀螺丝固定,能免除传统挂墙板的基层施工,大幅度地降低施工和时间成本。
13、留缝收口条

留缝收口条,适合于墙身留缝及墙身不同材料的分割设计与使用,使用AB胶固定。
14、饰面板挂墙板装饰条

饰面板挂墙板装饰条,适用于室内饰面板、挂墙板留缝装饰的设计,用自攻螺丝固定。
15、挂墙板阴角收口条(与PC橡胶组合使用)

挂墙板阴角收口条,适用于墙面挂墙板装饰阴角收口设计,用自带胶条固定。
16、饰面板顶凹槽踢脚线

饰面板顶凹槽踢脚线,适用于室内墙面饰面板凹槽式踢脚线设计,使用螺丝或发泡胶固定。
17、挂墙板阳角收口条

挂墙板阳角收口条,适用于墙面挂墙板阳角收口,用AB胶固定。
18、挂墙板配强化地板收口条

挂墙板配强化地板收口条,适用于室内墙面挂墙板、地面强化地板的收口设计,用发泡胶固定。
19、挂墙板凹槽收口条

挂墙板凹槽收口条,适用于墙面挂墙板造型的设计,使用自攻螺丝固定。
20、挂墙板平面收口条

挂墙板平面收口条,适用于墙面挂墙板造型的设计,用自攻螺丝固定。
21、挂墙板顶配强化地板带灯槽收口条

挂墙板顶配强化地板带灯槽收口条,适用于室内墙面挂墙板顶带灯槽地面强化地板造型的设计,AB胶固定。
22、挂墙板T角收口条

挂墙板T角收口条,适用于墙面挂墙板造型卡15、18厘板的设计,固定方式是背胶粘贴。
23、挂墙板装饰条

挂墙板装饰条,适用于室内挂墙板留缝镶嵌凹槽式设计,用自攻螺丝固定。
24、挂墙板带灯槽收口条

挂墙板带灯槽收口条,适用于墙面挂墙板造型的设计,用AB胶固定
25、挂墙板拼缝夹条

挂墙板拼缝夹条,适用于室内挂墙板拼接镶嵌留缝设计,用AB胶固定。
26、挂墙板侧收口条

挂墙板侧收口条,适用于挂墙板侧边收口,使用AB胶固定。
27、瓷砖墙身收口条

瓷砖墙身收口条,适用于墙面砖缝的分格装饰,用AB胶固定。
28、挂墙板暗门收口条

挂墙板暗门收口条,适用于挂墙板暗门收口使用,用AB胶固定。
29、瓷砖墙身阳角收口条

瓷砖墙身阳角收口条,适用于墙面瓷砖的阳角收口,用AB胶固定。
30、瓷砖墙身收口条

瓷砖墙身收口条,适用于墙面砖缝的分格装饰,用AB胶固定。
31、T角瓷砖墙身收口条

T角瓷砖墙身收口条,适合在已符合平整度要求的基层上粘贴瓷砖作收口装饰使用,用螺丝或瓷砖胶固定。
32、带灯槽瓷砖收口条

带灯槽瓷砖收口条,适用于简约轻奢风格装饰空间带灯槽踢脚线收口,用螺丝或瓷砖胶固定。
33、煽灰墙身强化木地板收口条

煽灰墙身强化木地板收口条,适用于室内墙面煽灰地面木地板或强化地板的收口设计,用发泡胶固定。
34、T角石材收口条

T角石材收口条,适用于墙身挂贴石材的装饰收口,尺寸规格为48(H)x 25(W)x 3000(L),用专用膨胀螺丝固定。
35、墙身藏边收口条A型

墙身藏边收口条A型,适用于墙面煽灰设计的收口,用发泡胶或螺丝固定。
36、带灯槽石材收口条

带灯槽石材收口条,适用于带灯槽墙面挂贴石材的设计,使用膨胀螺栓固定。
37、带灯槽墙身藏边收口条A型

带灯槽墙身藏边收口条A型,适用于墙面煽灰带灯光设计的收口,用发泡胶固定。
38、墙身煽灰面收口条

墙身煽灰面收口条,适用于墙面煽灰的设计,使用自攻螺丝固定。
39、带灯槽踢脚线(三)

带灯槽踢脚线,适用于地面铺大理石、地砖,墙面煽灰乳胶的设计,用螺丝或发泡胶固定。
40、卡式凹槽踢脚线A型

卡式凹槽踢脚线,适用于墙面煽灰(简约空间)的装饰踢脚线设计,用螺丝或发泡胶固定。
小结
对于收口条的使用,当然不止这40种了,由于篇幅因素,就先给大家介绍到这了。

最后,欢迎你访问设计得到的官网www.shejidedao.com,或在各大应用商店搜索【设计得到】解锁更多设计干货内容。
推荐阅读
https://www.shejidedao.com/library/14751-1.html
https://www.shejidedao.com/library/14771-1.html
https://www.shejidedao.com/library/14753-1.html
https://www.shejidedao.com/library/14757-1.html
https://www.shejidedao.com/library/15017-1.html