两款国产兆芯PC整机,实际体验到底如何?
不看广告看疗效:兆芯2016年发布的C4701+GTX960大战原神3.5现状
与其他国产处理器不同,基于X86架构设计,可运行Windows操作系统、Office办公软件,并播放1080p视频的兆芯处理器不仅仅只停留在专业的科研机构或院校里,更得到了多家厂商的大力支持,推出了多款基于兆芯处理器的产品。一些厂商还推出了采用兆芯处理器的小型整机,如此次我们体验的biens秉时商用微型计算机,以及联想昭阳CF03笔记本电脑。它们在体验上能否满足用户的需求呢?

相近的硬件配置
不同的使用定位
虽然这两台整机一台为Mini-PC机型,一台为笔记本电脑,但它们的硬件配置却非常接近,都采用了兆芯开先ZX-CC4600四核心处理器。C4600是兆芯开先ZX-C系列中定位较高的一款产品,其工作频率达到2.0GHz,采用28nm工艺打造,支持SSE4.2/AVX/AVX2等多种扩展指令集,TDP热设计功耗仅18W。同时这款处理器内部采用超标量、多发射、乱序执行架构等设计,兼容X86指令,可支持原生64bit系统与CPU虚拟化(VT)技术。

▲兆芯开先ZX-C系列处理器,采用28nm CMOS工艺打造,尺寸为21mm×21mm的FBGA封装技术。

▲两款机型所用的兆芯开先ZX-C C4600处理器采用4核心、4线程设计,每颗核心拥有2MB二级缓存,满载工作频率在2.0GHz,支持SSE4.2、AVX、AVX2等多种先进指令集。
从实际使用来看,biens秉时商用微型计算机安装了Windows 7 64bit版本,联想联想昭阳CF03则是Windows 7 32bit版本。此外它们也可使用麒麟、方德、普华及Linux操作系统。
由于不同的结构设计,因此两款整机的定位还是有所不同。其中仅与饭盒大小差不多的biens秉时商用微型计算机主要瞄准那些需要节省办公空间,或需要简洁美观的场合,它能让试用者拥有更多地空间存放资料。它也可用在临时搭建的如建筑建造、防洪抗旱指挥所里,减轻工作人员部署计算机的负担。毕竟它的裸机重量仅1082g,搬运起来非常方便。

▲biens秉时微型计算机由上海仪电智通信息技术有限公司推出,其内部由一块Mini-ITX主板搭载风冷主动散热设备,以及集成在板上的兆芯开先ZX-C C4600 2.0GHz处理器、4GB金士顿DDR3 1333 SO-DIMM内存、闪迪Z400S 256GB SSD等各类配件与板载芯片组成。

联想昭阳CF03笔记本电脑则是为那些需要移动办公的政府机关人员设计的——虽然不是全高清屏,但14英寸显示屏的配置,再加上较大的字体,能让用户长时间处理办公文件时在视觉上更加轻松。低功耗的兆芯处理器辅以4500mAh的电池,理论上应该能提供足够的续航时间。同时其裸机1684g的重量也不算高,携带起来较为方便。那么,这两台PC在实际应用中的表现到底如何呢?

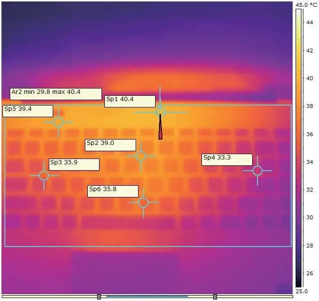
▲联想昭阳CF03笔记本电脑同样采用超低功耗的兆芯开先ZX-C C4600处理器,图为其在运行40分钟BurnInTest V8.1 Pro烤机测试时,笔记本的C面最高温度只有40.4℃,且位于键盘上方处,C面平均温度为35.2℃,发热量很低。

轻松胜任各类办公应用超短的开机时间 快速的传输速度
开机体验上,由于两台机器都采用了固态硬盘,因此开机时间都很短,两者从按下开机键到自检、进入系统的总耗时都不到半分钟。其中联想昭阳笔记本由于安装了中科方德、Windows 7多个操作系统,弹出系统选择菜单要稍长一些。但总体来看,它们的耗时都很短,自检完成后到进入操作系统的总耗时也就10余秒。

▲借助固态硬盘的使用,从软件测试可以看到这两台兆芯PC的开机时间都很低。
同时VX11PH主板上的USB 3.0接口与固态硬盘的配合,也为用户提供了较快的传输速度。两台PC与USB 3.0 2.5英寸机械硬盘相互读写一部3736.1MB影音文件的速度均达到了100MB/s以上,仅需约半分钟就可完成文件的传输工作。
瞬开各种文档、网页
在办公应用中,两台PC打开各类文档都非常轻松,如打开44MB杂志类较大PDF文档的时间也就1.8s左右。而字数在3万字以上的大型Word文档的开启时间也就在2~3s,非常迅捷。文件打开后,都能非常轻松地上下拖动、编辑、放大缩小,没有任何卡顿现象出现。
图片方面,两台PC在《光影魔术手》同时打开10张由5D MARK Ⅲ单反拍摄的2200万像素照片时,总耗时也就在9~10s左右。可以轻松地在这10张照片中切换进行编辑,没有卡顿现象出现。
此外我们还体验了网页浏览与在线视频播放。我们同时开启了包括新浪、腾讯、搜狐、新华网在内的10个门户网站网页,在浏览这10个网页的同时,还在乐视网站上在线点播了一个超清视频。结果显示,在这种环境下,CPU的占用率的确有很大提升,两台机器的占用率达到80%~90%,但应用体验的流畅度没有受到影响。各网页仍可流畅地上下拖动,在线视频的播放也没有任何卡顿或音画不同步的现象出现。

▲即便同时开启10个门户网站网页,并点播一个超清视频,各网页仍可流畅地浏览,在线视频的播放也没有任何卡顿。
可播放码率达52.2Mbps 1080p视频
在线视频受网速影响,码率一般不会太高,那么基于兆芯的这两台办公PC能否播放拥有较高码率的本地高清视频呢?答案是易如反掌。体验中我们发现,它不仅可轻松播放那些码率在5~10Mbps的小型1080p视频,更可流畅播放码率在20Mbps以上的高码率视频。

▲借助硬件解码功能,这两台兆芯PC播放高码率1080p视频时的CPU占用率都很低。
测试中我们播放了一段平均码率达52.2Mbps的《亡命感应》试机片段,开启硬件解码后,它的平均占用率在8%~35%之间变动,大部分时间在8%~20%左右,播放非常流畅。可以说兆芯完全可以满足企事业单位在电脑上播放高清视频的需求。略微遗憾的是,当前兆芯处理器不支持4K视频硬解码,这一功能将在下代产品上出现。

够用的续航时间
我们还通过PCMark8的Work工作电池测试,测试了联想昭阳CF03笔记本电脑在进行办公应用时的续航时间。测试结果令人较为满意,联想昭阳CF03笔记本电脑在进行办公应用时的续航时间可以达到3小时40分钟,基本上可以满足用户进行一个上午或下午的连续工作。

▲联想昭阳CF03笔记本电脑在PCMark 8 Work办公应用测试中的全程工作续航时间可达近4小时。
极低的使用成本
值得称赞的是,这两款采用兆芯处理器的整机功耗都非常低。我们采用BurnInTest V8.1 Pro专业烤机软件进行了测试。测试主要对CPU、3D图形核心、内存、硬盘这四个整机内的主要子系统进行了烤机,同时将它们的工作负载都提升到最高100%。结果令人欣喜,两台产品的整机满载功耗均未超过30W。要知道当前绝大部分处理器的TDP热设计功耗都高于30W,这将为用户带来很低的使用成本。

举例来说,即便按测到的最大27W整机功耗值计算,一台兆芯PC一小时的耗电量也就0.027kwh。按0.65元一度电,一台PC工作8小时计算,一台兆芯PC的一天工作日用电成本也就仅仅0.14元。如果一家单位部署100台这样的PC,全天的电力消费也只有仅仅14元,一月的PC用电成本也仅有434元(按31天计算),用电成本很低。
具备消费级PC潜力
最后,我们还尝试测试了它们在运行消费级应用的潜力,最为典型的代表就是游戏。结果显示,它们在运行《穿越火线》、《英雄联盟》时都没有出现任何BUG或死机现象,完全没有兼容性问题。唯一的问题还是运行游戏的帧速有所不足。不过,只要调低画质,在1366×768分辨率、低画质设定下,两款兆芯产品运行《英雄联盟》的平均帧速还是达到了30fps左右,我们甚至使用兆芯处理器在《英雄联盟》对局中连胜两局,其处理器与图形核心性能在游戏中已具备可用性。

▲在低画质设定下,这两台兆芯PC已经能基本流畅地运行《英雄联盟》。
总体来说,我们认为现在的兆芯PC就像兆芯集成电路有限公司副总裁傅城博士所说:“在消费级市场,我们认为兆芯还需要与上游软件厂商做匹配工作。”而一旦兆芯完成对消费级软件特别是游戏的优化工作,那么兆芯走入家庭也是理所当然。
小编有话说
从体验来看,这两款兆芯PC均具备很好的实用性——可以使用大家最习惯的Windows 32bit/64bit操作系统,毫无兼容性问题。无论是进行Word文字编辑、图片处理、PDF与多网页浏览,还是播放在线超清视频,乃至高码率1080p视频播放等各种任务,它们都能轻松应对。同时biens秉时商用微型计算机那小巧的体型,联想昭阳CF03笔记本电脑长达近4小时的工作续航时间也使得它们足以胜任各自针对的应用环境,而两者极低的整机功耗更可有效降低单位的使用成本。
显然,兆芯PC绝不是那类仅仅是为了让政府企事业单位采购,刻意国产化而后期却因性能或功能达不到用户要求,在办公室“吃灰”的形象工程,更是一件可以真正胜任各类常见办公任务、有效减少能源消耗的办公利器。

