三元 玺悦朝阳 将开盘,距离朝青 和光煦镜开盘仅两多月
玺悦朝阳
本周六,朝阳平房三元嘉业项目「玺悦朝阳」售楼处终于要开放了,距离保利和光煦镜4月20号开盘过去整整两个多月了,上次和光煦镜没买上的,这次要抓紧了。玺悦朝阳预计7月下旬开盘。

目前样板间和沙盘还在施工中,具体开盘价格也没定。项目独家团购优惠欢迎户型图上售楼员咨询,样板开放的时候,也会提前告诉大家。
2022年北京第四批次集中供地,平房PF44、PF45地块分别由保利+建工、和三元拿下。位于朝阳区平房乡棚户区改造和环境整治项目(一期)PF-45地块,最终由三元嘉业以24.38亿元+10000㎡现房销售面积竞得,溢价率15%,拿地楼面价约5.22万元/㎡,销售指导价8.5万元/平方米,该地块用地性质为R2二类居住用地,土地面积约1.87万平方米,建筑控制规模约4.67万平方米,地块容积率2.5、控高60米。
日前,该地块公布案名:玺悦朝阳。

PF44是「保利·和光煦境」,PF45是「三元·玺悦朝阳」。
今天我们来看看玺悦朝阳
项目信息
玺悦朝阳项目设计方案之前已公示,总用地面积约1.87公顷,地上总建筑面积约4.67万㎡,容积率2.5,建筑密度20%,共规划9栋住宅楼,7-18层,382户,其中期房296套,现房86套。停车位462个(均为地下停车位),车位配比1:1.2。

项目楼栋效果图

项目平面图
占地面积:约18681㎡ 总建筑面积:约71003㎡ 地上建筑面积:约46703㎡
现房销售面积:10000㎡ 限高:60m(实际建筑高度54.16m)
容积率:2.5 绿化率:30% 楼栋数:9栋
总户数:382套(79户现房销售)楼栋层数:7-18层
主力户型:建面约103㎡、122㎡、150㎡ 楼面价:5.22w/㎡
指导价:85000元/㎡(开盘优惠与团购优惠咨询户型图上售楼员)
总价:840-1258w 交付标准:精装
开发公司:三元嘉业(北京首农食品集团成员企业)
物业公司:绿城服务 物业费:6.98元/㎡
车位配比:1:1.2(车位462)

交房时间:预计2025年年底
【产品信息】9栋7-18层楼,382户(79户现房)
户型:三居99/108四居120/131/148

99平和112平房源数量较少,之前没买到保利99平,都在等三元,需要的小伙伴可要拼手速了。
户型介绍

户型分布图


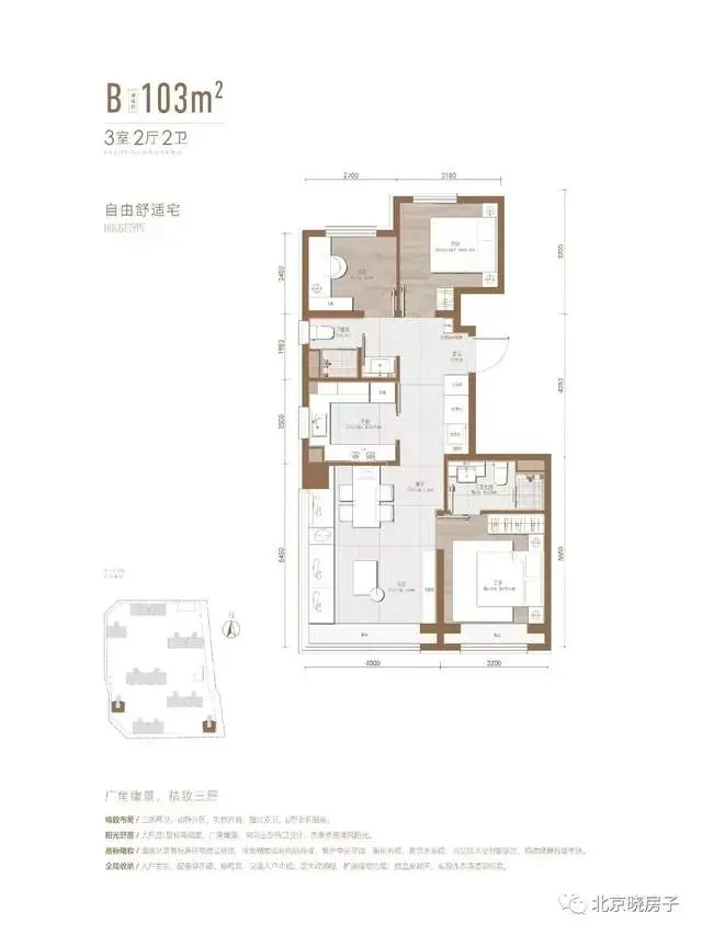
99平和103平是三室两厅两卫,南北通透,南向两面宽,南向是客厅和主卧,都带有飘窗,客厅采取270°转角开窗设计,采光和视野都非常好;北向两个次卧,卫生间做了干湿分离;门口有玄关柜和收纳间,还有一个小的洗衣区域,非常实用。

112平是三室两厅两卫,南北通透全明户型,南向三面宽,南向客厅和卧室都带有飘窗;三个房间都比较大,都独立的洗衣房;门口有玄关柜和收纳间,非常实用。


122平四居是四室两厅两卫,南向三面宽格局,南向卧室和客厅都带有飘窗,主卧窗户带270度转角,视野更开阔;餐客一体,空间利用率高;U型厨房,方便操作。

150平四居是四室两厅三卫,也是南向三面宽格局,这个户型南向面宽要比120平的宽很多,客厅都达到4米5,主卧超大卫生间,南向次卧也带个卫生间,这个户型一共有三个卫生间;对于有改善需求的,这个户型非常适合。
项目配套
从区位上来说,两项目位置很不错,两地块紧挨着,距离地铁6号线黄渠站约400米左右。

交通:距离6号线黄渠站300多米,10号线换乘24分钟到国贸,6号线向东24分钟直达通州副中心,14号线换乘37分钟可以到望京。自驾有朝阳北路、京通快速路、广渠快速路,朝阳北路可以直达朝阳大悦城、长楹天街。五环路 可以和阜石路、莲石路连接,机场2高,17公里 自驾21分钟到达首都国际机场。
商业:一路之隔就有星悦广场,西侧5公里左右有朝阳大悦城(建筑面积超过40万平方米),东侧2.3公里左右为龙湖长楹天街(27万平米),南侧1.6公里有北京双桥万达广场和国泰百货等大型购物中心。

医院:医疗配套在地块东南方,直线距离约2.2公里处即为“北京朝阳医院(常营院区)”,地块西西南侧,直线距离约4.0公里处为“民航总医院”(三甲医院)

公园:地块附近的生态环境也很不错,东坝野郊公园、常营体育公园、黄渠公园等多个公园环绕。距离北京四环内最大的城市公园朝阳公园直线距离7公里,地铁28分钟。

教育:项目地块西南侧直线距离约700米左右,就是北京第二外国语学院附属小学(定福分校),北二外附小对口的派位中学有北京工业大学附属中学双桥分校、中国传媒大学附属中学、十七中学陶家湾校区。
未来升值
8.5W/平米的指导价,很多人觉得高了。
毕竟常营和东坝挨着。
北熙区的指导价也只有8.1W/平米。
东坝还有产业规划,地铁也是3号线和12号线双轨交汇,教育上也有北京中学的利好。
而常营完全就是外溢逻辑,自身并没有产业规划,教育资源也一般、
只是靠配套成熟就卖8.5W/平米,未来还有上涨的预期吗?
而二手房方面,玺悦朝阳所在的常营地区二手房挂牌均价仅为6.0万/平,南部紧邻的定福庄和管庄板块,分别为5.4万/平和5.1万/平。
而五环以里的朝青板块,二手房挂牌均价则为8.3万/平。

◎玺悦朝阳所在区域二手房情况
具体到玺悦朝阳项目周边,定福庄区域基本上都是2010年以前的房子,基本上二手房挂牌均价都在6万/平以下,2006年建成的定福景园挂牌均价高一些,达到5.98万/平。

◎玺悦朝阳周边二手房情况
此外,项目东北侧同样是2006年建成的苹果派小区,二手房挂牌均价6.4万/平。

◎苹果派小区
二手房挂牌均价相对高一些的便是长楹天街商圈周围,比如柏林爱乐四期,二手房挂牌均价6.8万/平,万象新天家园均价为6.6万/平。
◎柏林爱乐
最具备竞争力的还是龙湖系的两个次新小区,2013年建成的长楹天街小区,二手房挂牌均价达到7.8万/平,2015年建成的常楹公元,二手房挂牌均价则达到8.3万/平。
◎常楹公元
当然,再往朝青板块去,与玺悦朝阳同价位的二手房小区虽然质量不高,但因为环线和配套优势,也有自己的需求群体。
目前8.5万/平的价格,在整个常营地区都算最高价。不过依照北京这两年新盘成交均价低于指导价的趋势来看,玺悦朝阳也没有足够的底气不降价。