【建筑百日案例营】第一周总结
案例解读
DAY1 阿利坎特现代美术馆
【学习要点】
① 阿利坎特现代美术馆经典剖面形式,单一母题在剖面上的运用,可利用这种形式分割不同功能区,或在展览建筑中分割不同展厅,相互联系又有分割,有意思的剖面会为快题加分
②交通置于建筑中心分割私密空间与公共空间,做到人群分流。特别是在展览建筑中,后勤工作人员的流线不可与游客观展流线交叉,否则会出现在展厅有工作人员进进出出搬画装运的奇怪场面

与现代的艺术氛围相对,建筑基地位于Alicante的历史中心,周围有城堡、海、小Santa María广场和教堂,无一不对建筑的地形、语言、语境以及朝向产生影响。建筑设计需要同时考虑现代艺术与历史语境这两个相对独立的因素。

老博物馆与新建筑连在一起,建筑的立面采用石材,这一材料语言和相邻的教堂以及历史街区相通,同时可以让新建筑与老Asegurada博物馆成为一个整体,把老建筑的附加用房改造为展览空间。

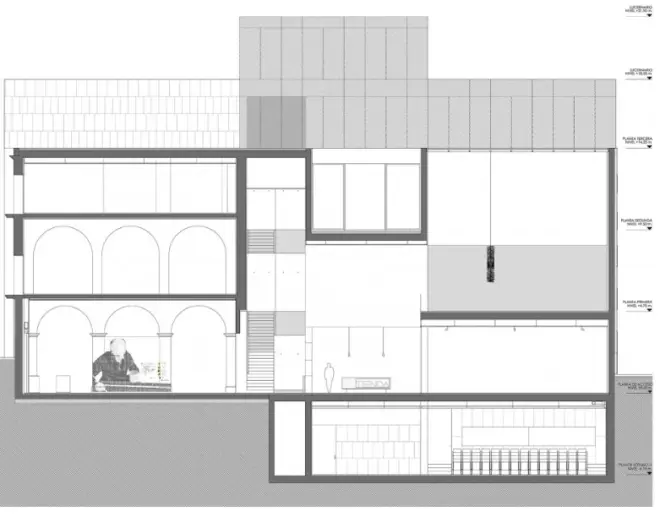
剖面学习⭐⭐⭐
运用了单一母题重复,达到丰富的效果,三个“3”字型的展览空间一字排开,既达到不同展厅的独立性又满足空间流动互通。



展览区域分为三层,均有北面的连续漫射采光。第一层为一个连续的展览空间,垂直方向上形成富有节奏感的凹进突出;第二层为单独的展室,由一层通高的部分进行分隔;通高部分的突起与二层展室的屋顶形成了黑,白,金三个庭院,由第三层的水平展区联系在一起

DAY2本顿县历史学会科瓦利斯博物馆
【学习要点】
①立面单一母题重复变换:立面四块,三块都是坡屋顶,但立面上又各有不同,通过开窗,虚实的对比达到统一中又有变化,将简单元素利用好了也可以做出丰富的效果,在快题中不要想着3H能画出多么惊世骇俗的方案(平时课设一个学校不都很难想出来嘛哈哈哈)
②门厅通高:门厅作为建筑入口门户,通常拥有较大面积,如果将门厅做成通高空间,则在三维方向都能获得较大尺度。不仅满足客观功能需要,也能带给进入建筑的人较好的感受

四个平行的结构托架与邻近店面的规模和尺度相呼应,而陶瓷砖的外墙则重新诠释了历史悠久的市中心的砖石建筑传统。
该建筑拥抱着街道,邀请公众进入大厅和导向画廊、博物馆商店、多功能教室和地面上的庭院。上层画廊的窗户伸出人行道,可以瞥见里面的艺术和活动,并可以看到周围地区的框架。

在内部,参观者被引导到一个大楼梯上,两边是木板,进入一系列相互连接的画廊。



在上面,画廊占据了清晰的空间,在对角线上被天窗一分为二,为观看不同性质的收藏品提供可控的自然光。新的建筑也将成为本顿艺术中心策展、规划和社区推广人员的基地。
优秀作业
预热课程
作为预热课程,还组织同学们对今年的高分快题复原图进行了抄绘,作为步入快题学习的第一课,虽然还有很多地方画的不足,但同学们的认真的态度相信坚持下去会有好结果的噢!
DAY1 阿利坎特现代美术馆

部分学员作业截图






DAY2本顿县历史学会科瓦利斯博物馆

部分学员作业截图







案例转译参考



