装修还能“换皮肤”?BIM整装真是太优秀了
游戏里可以给虚拟人物换皮肤,但是你听过装修也能“换皮肤”吗?
80后的蔡先生是一位资深手游玩家,平时就喜欢买些游戏装备,尤其是给自己喜欢的AI角色。而对于装修的皮肤来说,蔡先生一直下不了决定,看啥都觉得好,但是又怕选错了后悔。

听朋友说现在装修也能“试装”,先看装修效果,再决定装修方案。蔡先生对财精整装的BIM黑科技非常感兴趣,抱着试试的心态来免费体验了一下!

(蔡先生家厨房配色方案1)

(蔡先生家厨房配色方案2)
初步沟通以后,发现蔡先生追求房间风格差异化。
①老人房和儿童房在色彩和功能设计上都要明显区分开。
②厨房面积有些偏小,希望从视觉上增大些

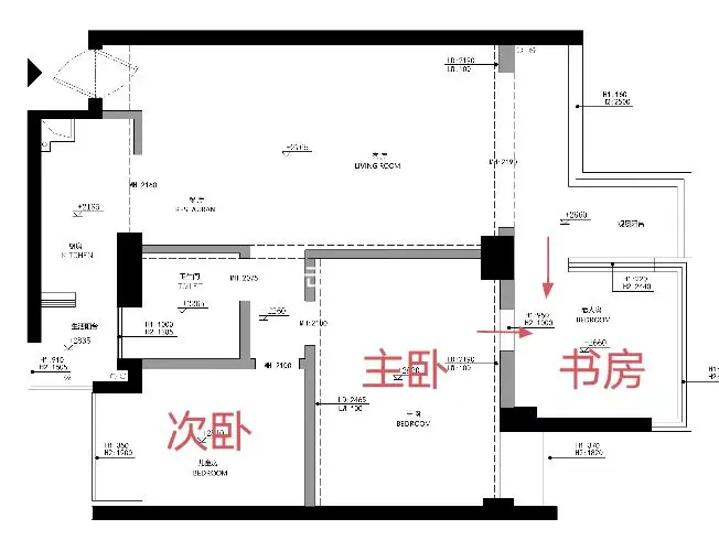
蔡先生家原始户型是一个套内面积88平米的三居室,房型比较规整。除公共区域以外,还有3个房间:次卧、主卧、书房。其中,主卧和书房是相连的,可以从主卧进入书房,也可以从景观阳台进入。
但是由于二胎宝宝的到来,正处于事业上升期的夫妻两人实在腾不出手,于是接老人来帮忙看孩子。就需要把书房改造成老人房。

(设计后平面图)
装修改造要点
1增加主卧和老人房之间的墙面,把门洞补上。2儿童房温馨、老人房素雅且做一定的适老化设计。3小孩衣物多且需要常清洗,预备充足的晾晒区。4尽量多设置储物空间,满足家庭储物需求。

首先让蔡太太满意的是:大量的储物空间。进门玄关衣柜、餐厅一体化餐边柜、电视墙边柜,收纳空间完全够用了。
风格上,蔡先生调整了一下客厅大理石地面与墙面的色彩,选择了米灰色+白色的搭配。进门处用水波纹玻璃砖墙分割客厅和餐厅空间。整体设计简约大气,又展现出通透感。

为了显得客厅空间更大,我们设计了一个极简电视墙,没有安置电视柜占据空间面积,只设计来看一个地台来丰富空间的层次感。
另外,将储物空间竖起来,悬空安置在电视墙左侧,这样既有了收纳空间,打理起来也更加方便。

蔡先生家的主卧只有一个问题:飘窗面积较小,采光受限制。我们将飘窗位置延伸出来,做成定制梳妆台,并且利用窗户顶端的梳妆镜反射窗口的阳光到卧室中,合理运用空间还能增加采光。


卧室设置顶天立地大衣柜,收纳能力极强,黑白配色清新自然。柜子内部通过使用习惯合理划分了区域:上衣区、下装区、大衣区、包包区都充分考虑了。
而柜体最右侧因为横梁不可拆除,设计成了开放式小格,方便随手取用常用物品,也增加了装饰效果。

老人房拥有大面积窗户采光条件极佳,虽然使用面积不大,但是设计师将床靠窗排布,书桌衣柜与床脚垂直摆放,形成L型设计,节省空间又保证收纳。

6岁的儿子房间设计成蓝绿色和白色的空间,充满童趣。又利用飘窗台,延伸出一张小床,孩子靠窗睡,晚上可以数星星,早上迎接第一缕阳光,不容易赖床。

对于有老人还有小孩的家庭,干湿分离的卫生间是非常有必要的。整体采用偏白色的地面与墙面,让整个卫生间看起来更加明亮通透。

蔡先生一家不仅在试装体验中看到了“不同皮肤”的家装设计,还提前看到了精准的装修用材、方案报价。从设计到软装家具一气呵成,省心、省时、省力,最重要的是还省钱。
蔡先生表示:这是他这个选择困难症,做过最痛快的一次选择!