欢迎光临散文网
会员登陆 & 注册
手机站
首页
散文
诗歌
杂文
随笔
日记
小小说
散文网
»
科技
»
学习
» 图纸 | 各种钢梯CAD图纸
图纸 | 各种钢梯CAD图纸
2023-03-30 11:01 作者:
阳光工匠网晓光
0
人读过
|
我要投稿
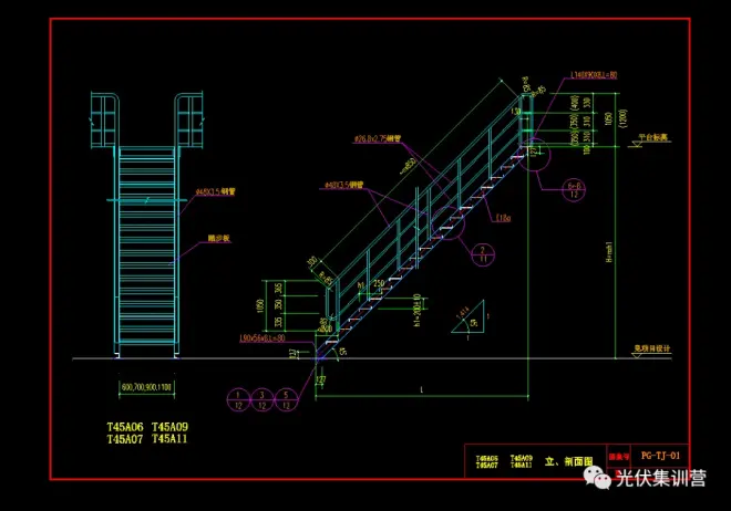
各种钢梯CAD图纸
图纸 | 各种钢梯CAD图纸,索取完整版「关注公众号:光伏集训营」找晓光
标签:
光伏
光伏图纸
各种钢梯CAD图纸
我喜欢(
)
本文
作者的其他文章
图纸 | 各种钢梯CAD图纸的评论 (共
条)
分享到微博
请遵守国家法律
阳光工匠网晓光
发短消息
关注TA
你可能也喜欢这些文章
日本服务器托管如何?
通过自媒体平台创造收入,选对平台至关重要!
数据中心idc机房是什么?idc机房标准有哪些?
2024年中国科学技术大学432统计学考研全套
银行数字化转型导师坚鹏:银行产品经理技能快速提升之道
香港服务器是否可以托管?香港服务器怎么托管的?
2024年北京航空航天大学外国语学院721基础英语考研全套
实验室培养皿分装方式大盘点
【风箫&阿豆】爱我我都懂∣被我箫子治了
《impart》9分钟合集 豆瓣评分5.2
最新发布的文章
农发行河津市支行做好年终决算工作
农发行河津市支行持续加强反洗钱工作管理
农发行河津市支行扎实做好安保工作
农发行河津市支行组织开展宪法主题宣传活动
农发行河津市支行开展"挺膺担当,强国复兴"主题团日活动
年终总结2023,布局2024,挑一个目标置顶一整年!
12月20日维护结束,冰雪嘉年华开启!
2023扫文—高热不止 by 黄昏密度
Dive 55 工作的平衡
时尚 | 时尚趋势是如何做出来的?
三星 Galaxy S24 Ultra,HP2SX两亿像素主摄,骁龙8Gen3超频版,钛合金机身,类2K直屏
重庆TOP DECK超牌12月16日游戏王OCG积分赛环境战报
致命公司多人联机mod,汉化游戏下载使用安装教学!
致命公司多人mod,超全MOD模组管理器
战网下载卡在45%登录失败提示2045报错/战网一键下载注册教程!