涉及赵巷、徐泾和金泽三镇,青浦3项市政设施方案设计公示
内容摘要:青浦区发布1座桥梁和2条道路方案设计公示,涉及赵巷、徐泾和金泽三镇。
近日,青浦区发布1座桥梁和2条道路方案设计公示,它们分别是赵巷佳采路崧泾河桥,徐泾镇徐灵路—兴虹西路贯通工程和金泽镇西岑社区规划三路。
下面我们一起来了解一下:
1、赵巷镇佳采路崧泾河桥

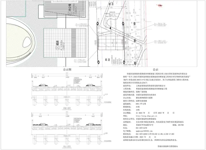
佳采路崧泾区位图
建设单位:上海赵巷商业商务投资发展有限公司
工程名称:青浦区赵巷镇佳采路崧泾河桥新建工程
建设用地位置:青浦区赵巷镇商业商务区
规划用地性质:道路广场用地
建设工程性质:道路交通设施
建筑面积:690.3平方米
桥梁跨度:33米
红线宽度:19米
公示期限:2023年6月16日至2023年6月25日

公示图则1
佳采路崧泾河桥位于赵巷商业商务。
现状佳采路、崧泾交汇处与公示图则崧泾走向似乎不太一致,公示图则也不够清晰,“附图1”佳采路、崧泾河仅反映现状,仅供参考。
2、徐灵路—兴虹西路贯通工程公示

徐灵路—兴虹西路贯通工程
建设单位:上海市青浦区道路运输管理事务中心
工程名称:徐灵路—兴虹西路贯通工程
建设用地位置:青浦区徐泾镇,西起规划涞港路,东至闵行区界。
道路等级:城市支路
规划用地性质:道路广场用地
建设用地面积:5144.8平方米
建设规模:青浦侧长度约214.379米,红线宽度24米
公示期限:2023年6月15日至2023年6月24日

公示图则2
徐灵路—兴虹西路贯通工程隶属于徐泾虹桥主城片区。
道路横断面显示,该道路为双向2车道,与非机动车混行,两侧设专用人行道。
今年5月,该项目征地补偿安置方案公布,
另外,青浦至闵行3条区区通项目入选闵行本年度重大工程清单,其中包括了本项目,其余两条分别是天山西路(华翔路-规划涞港路)道路改建工程,龙联路(规划小涞港桥东侧接坡-涞港路)新建工程(龙联路桥)。
3、青浦区金泽镇西岑社区规划三路新建工程(练西公路-规划二路)公示

西岑规划三路(练西公路-规划二路)
建设单位:上海市青浦区金泽镇人民政府
工程名称:青浦区金泽镇西岑社区规划三路新建工程(练西公路-规划二路)
规划用地性质:道路广场用地
建筑用地位置:青浦区金泽镇西岑单元西侧,东至练西公路,西至规划二路
建筑工程性质:城市主干路
用地面积: 86536.4平方米(建设长度2331米,红线宽度36米)

公示图则
规划三路位于金泽镇西岑科创中心南边界,即港悦路。根据已批复的片区规划,该道路科创中心段东起规划六路(泽青路),西至规划二路(培漾路)以西。
本期方案公示为西段,即练西公路-规划二路(培漾路)。长度约2331米,红线宽度为36米,道路等级为城市主干道,为双向6车道,两侧附专用非机动车道和人行道。
今年5月,金泽镇西岑社区规划三路新建工程(练西公路-规划二路)公布征地事宜。
今年3月,该道路东段,即规划三路(练西公路-规划六路(泽青路))公布征地公告。
资料:青浦区政府网
编辑:大青浦房谈

