规划总面积18.15公顷,华新水质净化厂新建项目专项规划公示
内容摘要:《青浦区华新水质净化厂新建项目选址专项规划 (公众参与草案)》公示,位于凤溪社区单元以北,规划总面积18.15公顷,其中新建水质净化厂面积8.65公顷。

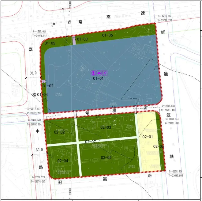
区位示意图
近日,《青浦区华新水质净化厂新建项目选址专项规划 (公众参与草案)》公示。
青浦华新镇将在凤溪社区单元以北选址新建华新水质净化厂,规划范围总面积18.15公顷,其中新建水质净化厂面积8.65公顷,将拆除原址上的污水厂和环卫所。
项目四至东至新通波塘、南至冠赢路(规划)、西至嘉松中路、 北至华重公路。
水质净化厂建设规模近期为10万立方米/天,远期为15万立方米/天。
毫无疑问,新建华新水质净化厂主要是为“凤溪社区”未来人口导入做准备的。
以下为本次公示全文:
规划背景和范围
规划背景:华新污水厂作为青东片区核心污水处理厂,现状面临片区污水量增长、服务人口增多、服务范围增大等问题,为保证华新污水处理厂的运行稳定,根据相关规划及文件要求,拟新建华新水质净化厂。同时结合现状环卫所扩建需求,开展本次规划。
规划范围:位于华新镇郊野区域,叙中村、北新村、朱长村三村交汇处。规划四至范围:东 至新通波塘、南至规划冠赢路、西至嘉松中路、 北至华重公路,规划范围总面积18.15公顷。
主要规划内容
一、水质净化厂新建选址
根据《上海市青浦区污水处理系统及污泥处理处置规划(2022-2035) ) (沪水务(2023) 373号)等相关规划及文件要求,通过污水量预测、用地选址等相关论证分析,确定华新水质净化厂规模、位置及建设形式。
建设规模:近期10.0万m3/d、远期15.0万m3/d。
建设位置:位于现状污水厂北侧,东至新通波塘、南至一号横河、西至嘉松中路、北至华重公路。
建设形式:采用半地下一体化箱体建设形式,建设一座集约型和环境友好型的水质净化厂。
二、规划用地调整
新建水质净化厂建成后,现状污水厂及现状环卫所将拆除,用地调整情况如下:
拆除现状污水厂、环卫所面积6.02公顷;新建水质净化厂面积8.65公顷(含环卫所用地0.65公顷) (U3),同时新增通道用地(S5)面积0.05公顷;建设用地总面积增加2.68公顷。相应农用地总面积减少 2.68公顷。

公示图则

地块规划指标
资料:青浦区政府网
编辑:大青浦房谈

