85㎡三室两厅,清新自然打造温馨好家,福州中宅装饰,福州装修


今天要分享的是一套面积85平米的现代风三室两厅的案例。拍摄时业主已经入住,整间屋子充满了温馨幸福的生活气息,在繁忙的生活中还有一处安逸的港湾。
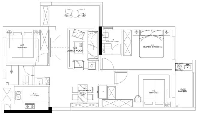
户 型 图

业 主 需 求
业主偏爱简单质感的风格,希望空间明亮、大气。
本案定位于灰调简约风,低奢清雅,删繁就简,用最简单朴实的设计语言来表达最完美的空间艺术。在硬装空间方面非常的简洁大方,突出线条感和空间感,营造出高端简约的氛围。
餐 厅
入门右手边就是餐厅,两面墙的收纳柜和餐边柜扩大了房屋的收纳功能。
白色岩板石桌和黑白座椅,极简的搭配却也存在着满满的生活的温馨之气。

冰箱很好的嵌入墙体和柜体,不突兀和收纳柜融为一体。

厨 房
厨房L型操作台面,转身之间就能拿到需要的物品。积虽不大,但整洁有序,增加空间的层次感。
挖出一块墙体打造一个小型壁龛,让每一个调料罐都有了自己的家。


客 厅
背景墙刷大白简洁耐看,空间超大落地窗满足室内采光,无主灯设计调和氛围感,最大化保持空间的干净纯粹。

电视背景墙没有做造型,白色饰面搭配原木色加白色电视柜,台面可作为摆置装。

灰色沙发搭配上橘色靠枕,为客厅增添一抹暖色,一旁的绿色盆栽印得房间生机勃勃,木质的摇椅让人悠闲惬意下来。
两侧的音响让客厅成为人人都爱的家庭影院360°环绕立体音,在家也能享受影院的体验。

卧 室
主卧室的床头背景墙同样是刷成了浅灰色,搭配灰色的床头靠背和蓝色的床品,显得更有整体感。床头的玫瑰点缀整个房间。

次卧做到顶的衣柜,能放下不少衣服,就连墙面转角都不忘收纳。向日葵让房间瞬间暖了起来。

书桌更有学习氛围,窗帘装的窗帘盒不怕透光影响睡眠,让孩子有舒适的成长环境。
