【设计分享】乡住8款150平米自建别墅设计图纸,建一栋又舒适又精致的居家别墅
丨别墅-01丨

项目概况
项目位置丨北京房山
图纸编号丨000128
建筑尺寸丨面宽12.2m,进深5.4m
建筑面积丨150.00㎡
占地面积丨75.00㎡
土建价格 | 土建35万
建筑高度丨7m
结构形式丨砖混结构

△一层平面图

△二层平面图
丨别墅-02丨

项目概况
项目位置丨四川绵阳
图纸编号丨001519
建筑尺寸丨面宽17.7m,进深12.7m
建筑面积丨150.00㎡
占地面积丨150.00㎡
土建价格 | 土建30万
建筑高度丨5m
结构形式丨砖混结构

△一层平面图
丨别墅-03丨

项目概况
项目位置丨北京昌平
图纸编号丨000635
建筑尺寸丨面宽14.5m,进深10.6m
建筑面积丨150.00㎡
占地面积丨150.00㎡
土建价格 | 土建32万
建筑高度丨5m
结构形式丨砖混结构

△一层平面图
丨别墅-04丨

项目概况
项目位置丨四川南充
图纸编号丨001161
建筑尺寸丨面宽12m,进深6.3m
建筑面积丨150.00㎡
占地面积丨150.00㎡
土建价格 | 土建32万
建筑高度丨7m
结构形式丨砖混结构

△一层平面图

△二层平面图
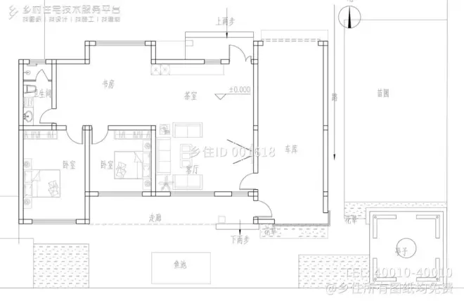
丨别墅-05丨

项目概况
项目位置丨江苏南通
图纸编号丨001618
建筑尺寸丨面宽16.8m,进深9.9m
建筑面积丨150.00㎡
占地面积丨150.00㎡
土建价格 | 土建27万
建筑高度丨4m
结构形式丨砖混结构

△一层平面图
丨别墅-06丨

项目概况
项目位置丨北京顺义
图纸编号丨001324
建筑尺寸丨面宽15m,进深15m
建筑面积丨150.00㎡
占地面积丨150.00㎡
土建价格 | 土建32万
建筑高度丨5m
结构形式丨砖混结构

△一层平面图
丨别墅-07丨

项目概况
项目位置丨北京密云
图纸编号丨001311
建筑尺寸丨面宽11.1m,进深18.9m
建筑面积丨150.00㎡
占地面积丨150.00㎡
土建价格 | 土建32万
建筑高度丨5m
结构形式丨框架结构
△一层平面图
丨别墅-08丨

项目概况
项目位置丨四川绵阳
图纸编号丨001519
建筑尺寸丨面宽17.7m,进深12.7m
建筑面积丨150.00㎡
占地面积丨150.00㎡
土建价格 | 土建30万
建筑高度丨5m
结构形式丨砖混结构

△一层平面图

