西班牙—伊维萨岛博萨海滩公共住宅—08014建筑事务所【优秀设计案例分享】
安筑设计学社D5渲染器2.5新版本课程更新啦~
咨询VX:AZZH2022



这个有24个公共住房单元的项目,位于西班牙伊维萨镇南部的博萨海滩,该城市以开发大众旅游为主要产业。建筑坐落在一块43×43米的正方形地块上,地势平坦,海拔约5米,用地相对南北主轴呈45度角倾斜。



建筑以温暖气候条件下的西班牙传统住宅建筑形式为基础,不可避免地参考了古典穹顶、伊斯兰房屋或伊维萨岛传统建筑。设计通过将建筑定义为一个孤立的四层楼体量,使建筑与周围环境保持一定的独立性,实际上达到了地块的最大占用率和可建性。建筑周围的四个庭院对住宅的舒适性起着至关重要的作用,同时也成倍增加了建筑的外形尺寸,使所有起居室和卧室都具有双重朝向。






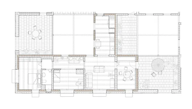
建筑结构采用承重墙,形成一个近似正方形比例的网状空间,在建筑的结构和空间系统之间建立了对应关系。这些空间被组织成两个同心条带——外部的条带包括起居室、卧室和浴室,内部的条带包括厨房和四个庭院,两个条带环绕着建筑的重心,这里是交通核心所在,每层可通往八套住宅。






八套住宅(四套一居室住宅和四套两居室住宅)成对“拥抱”庭院,因此每栋住宅都有两面朝向庭院,这种布局将内部空间与外部和半外部空间紧密联系在一起,确定了一种居住方式。此外,这还意味着住宅内部的长期发展,出现了始终向庭院开放的过渡空间,其宽敞的尺寸使其超越了单纯的过渡作用,成为多功能空间。






该项目达到了许多可持续发展和能效指标,显著高于现行法规规定的数值。首先,项目将建筑施工材料和技术产生的二氧化碳排放量限制在438.91千克二氧化碳每立方米,相比传统方法产生的排放量减少了约30%。之所以能取得如此显著的改进,是因为建筑使用了生物质烧窑生产的陶瓷、木材制作横梁、中庭结构和家具、回收棉花制作外墙隔热材料、使用干槐花制作屋顶隔热材料,采用以上做法也挽救了当地建筑的传统技艺。





其次,项目实施被动式设计策略,将不可再生的一次能源消耗量降至10.7千瓦/平方米/年。这些策略包括:用挖掘的泥土填充而成热粘土墙壁,形成高热惯性围护结构;所有房间交叉通风;用玻璃围护系统覆盖天井,对房屋内部进行热调节,并采取切实可行的防晒措施,使天井成为生物气候中庭,即冬季成为蓄热区,夏季成为通风遮阳区。此外,这些建筑策略还能使住宅内部达到舒适的湿度和温度条件,而无需安装集中供暖系统,这意味着为居住在建筑中的家庭节省了大量能源费用。






最后,必须强调的是,项目在庭院、城市界面、屋顶和花槽中种植了大量绿色植物,以减轻热岛效应,创造更舒适的生活条件。此外,项目精心挑选了低需水量植物品种,并将屋顶收集的雨水储存在建筑前方的地下蓄水池中用于灌溉再利用,从而保证了伊维萨干旱气候下植被的可持续性。




设计图纸










面积:总建筑面积2596平方米
设计日期:2018-19
建设:2020- 2022年
地点:西班牙伊比沙岛的博萨广场
摄影:Pol Viladoms

