欢迎光临散文网
会员登陆 & 注册
手机站
首页
散文
诗歌
杂文
随笔
日记
小小说
散文网
»
生活
»
日常
» 国企分部分项施工方案模板(共62套),参考价值高
国企分部分项施工方案模板(共62套),参考价值高
2023-08-03 17:48 作者:
工地上的小凡
0
人读过
|
我要投稿
某国企
分部分项
施工方案模板
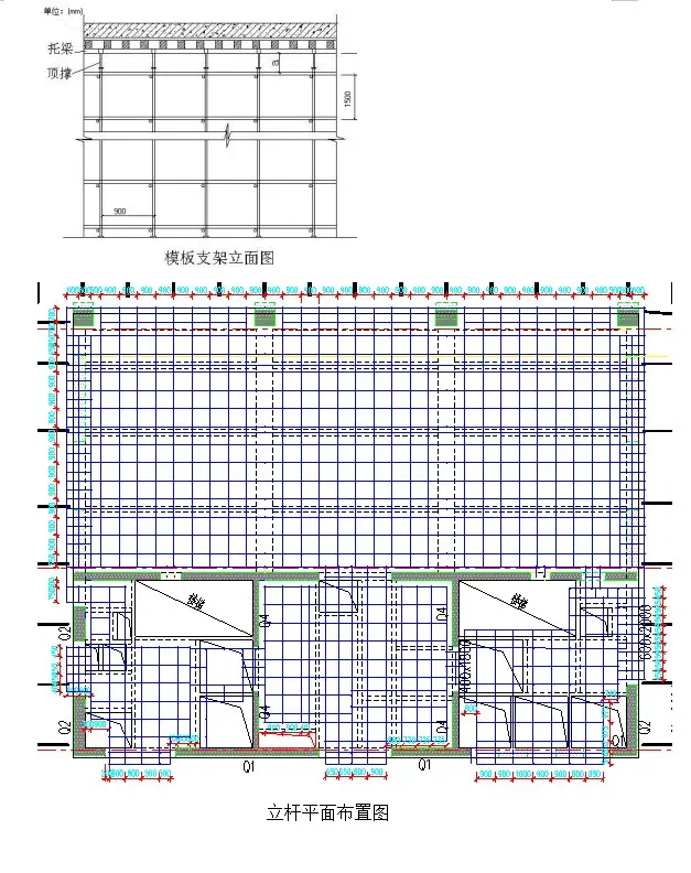
,一共62套,包含脚手架、混凝土、机电安装、土方开挖、塔吊定位、基坑监测、高支模等项目,表格丰富,
内容全面,参考价值极高
。
完整版获取
评论留言“
来一份
”,点我头像私信“
66
”
标签:
我喜欢(
)
本文
作者的其他文章
国企分部分项施工方案模板(共62套),参考价值高的评论 (共
条)
分享到微博
请遵守国家法律
工地上的小凡
发短消息
关注TA
你可能也喜欢这些文章
珠海比较好近视手术医院是哪家?排名权威公布!火速收藏!
Kinera全新耳机升级线ACE2.0火热进行中……
现代控制理论虚拟仿真:探索智能化控制未来
给世界一点“颜色”看看——奥林巴斯(奥之心)机内滤镜设置手册 VOL.1
twitch出现网络错误/打不开网页/连接不上怎么解决
梦幻雪|奶茶店想要经营好,产品是关键
盘点那些离开学校老师颜值立马回春,前后差别堪比AI换脸!
第一话
珠海比较好近视手术医院排名?排名权威公布!火速收藏!
第十四章 深空上的杀机(1)
最新发布的文章
农发行河津市支行做好年终决算工作
农发行河津市支行持续加强反洗钱工作管理
农发行河津市支行扎实做好安保工作
农发行河津市支行组织开展宪法主题宣传活动
农发行河津市支行开展"挺膺担当,强国复兴"主题团日活动
年终总结2023,布局2024,挑一个目标置顶一整年!
12月20日维护结束,冰雪嘉年华开启!
2023扫文—高热不止 by 黄昏密度
Dive 55 工作的平衡
时尚 | 时尚趋势是如何做出来的?
三星 Galaxy S24 Ultra,HP2SX两亿像素主摄,骁龙8Gen3超频版,钛合金机身,类2K直屏
重庆TOP DECK超牌12月16日游戏王OCG积分赛环境战报
致命公司多人联机mod,汉化游戏下载使用安装教学!
致命公司多人mod,超全MOD模组管理器
战网下载卡在45%登录失败提示2045报错/战网一键下载注册教程!