乡住分享8款挑空自建别墅设计图纸,在提高采光通风的同时又提升美感
丨别墅-01丨

项目概况
项目位置丨湖南衡阳
图纸编号丨000188
建筑尺寸丨面宽13.9m,进深16.1m
建筑面积丨538.00㎡
占地面积丨190.00㎡
土建价格 | 土建98万
建筑高度丨12m
结构形式丨框架结构

△一层平面图

△二层平面图

△三层平面图
丨别墅-02丨

项目概况
项目位置丨浙江台州
图纸编号丨000370
建筑尺寸丨面宽11m,进深13.2m
建筑面积丨360.00㎡
占地面积丨127.00㎡
土建价格 | 土建62万
建筑高度丨14m
结构形式丨框架结构

△一层平面图

△二层平面图

△三层平面图
丨别墅-03丨

项目概况
项目位置丨浙江宁波
图纸编号丨000811
建筑尺寸丨面宽16.4m,进深13.4m
建筑面积丨661.00㎡
占地面积丨204.00㎡
土建价格 | 土建107万
建筑高度丨10m
结构形式丨框架结构

△一层平面图

△二层平面图

△三层平面图
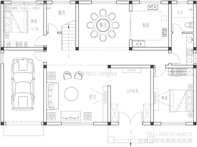
丨别墅-04丨

项目概况
项目位置丨四川内江
图纸编号丨000892
建筑尺寸丨面宽16.4m,进深11.9m
建筑面积丨312.00㎡
占地面积丨175.00㎡
土建价格 | 土建52万
建筑高度丨8m
结构形式丨砖混结构

△一层平面图

△二层平面图
丨别墅-05丨

项目概况
项目位置丨河北廊坊
图纸编号丨000912
建筑尺寸丨面宽15m,进深11m
建筑面积丨334.00㎡
占地面积丨163.00㎡
土建价格 | 土建57万
建筑高度丨8m
结构形式丨框架结构

△一层平面图

△二层平面图
丨别墅-06丨

项目概况
项目位置丨湖南湘潭
图纸编号丨001014
建筑尺寸丨面宽12.9m,进深12.1m
建筑面积丨297.00㎡
占地面积丨141.00㎡
土建价格 | 土建50万
建筑高度丨10.24m
结构形式丨砖混结构

△一层平面图

△二层平面图
丨别墅-07丨

项目概况
项目位置丨湖南衡阳
图纸编号丨000191
建筑尺寸丨面宽12.1m,进深11.4m
建筑面积丨290.00㎡
占地面积丨137.00㎡
土建价格 | 土建55万
建筑高度丨7m
结构形式丨砖混结构

△一层平面图

△二层平面图
丨别墅-08丨

项目位置丨湖南永州
图纸编号丨000181
建筑尺寸丨面宽12,6m,进深16m
建筑面积丨658.00㎡
占地面积丨180.00㎡
土建价格 | 土建116万
建筑高度丨11.7m
结构形式丨砖混结构

△一层平面图

△二层平面图

△三层平面图