我敢赌,这个家永不过时!

本期的真实人家案例来自北京,原有两室一厅的格局,被改造为一室两厅,平平无奇的房子因此拥有了开放式厨房,一体式客餐厅,超强收纳功能的玄关和衣帽间。
屋主YY喜欢无拘无束的生活,工作上受限制太多,就想要自己的家逃脱开条条框框,无所谓风格,不害怕尝试,最要紧的是——这是一个能让她彻底放松、放下负担的空间。
今天这期分享,不仅能让大家收获美家Room Tour,还有动线、灯光和收纳规划可以借鉴,文末可照搬的好物清单和墙漆色号也别忘了保存哦。
改造前 VS 改造后
▼


改造前存在的问题:
· 玄关很小,能看见客厅;
· 厨房与储物间的门相对,形成鸡肋小走廊;
· 家中1人住,不常来客人,次卧浪费;
· 一字型狭长厨房,活动空间不足,冰箱放在外面,采光不足。
改造前
▼

改造亮点:
· 拆掉小储物间,扩大玄关空间;
· 客厅与玄关间造隔断,保证居住隐私;
· 厨房由封闭改为开放,增设岛台;
· 客厅中规划出餐厅,连为一体;
· 原次卫墙面内移、扩大;
· 原次卧改为衣帽间。
改造后
▼

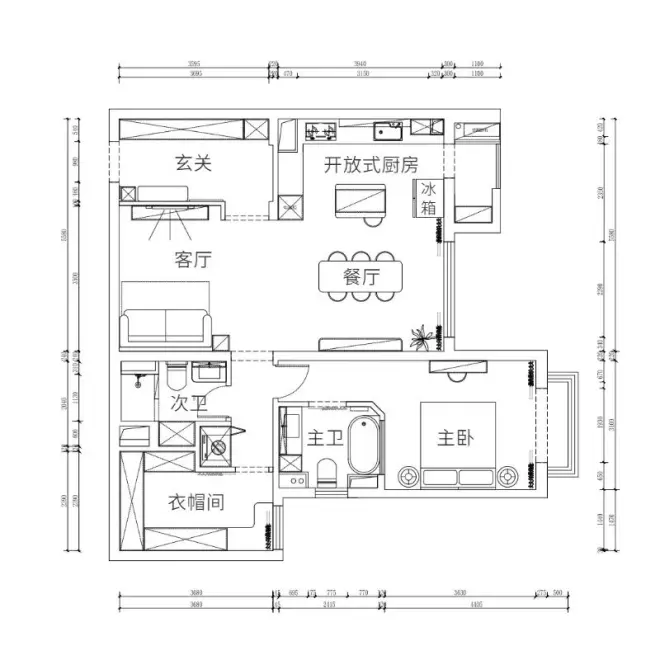
房屋位置:北京朝庭公寓
房屋面积:建面112㎡ 套内86㎡
房屋户型:一室两厅一厨两卫(改造后)
常住人口:1人
设计师:迟东婷(住范儿)
北京|上海「真实人家」
报名入口:

01
玄关:移动两面墙,收纳扩容

原来的玄关就是个小方形,只能塞下个换鞋凳、鞋架;虽然正对着墙,但往右一看就能看到客厅全貌,毫无隐私性可言。

拆掉原有的储物间,在客厅和玄关之间加设墙体,围合出一个走廊式玄关,扩容的同时还能让人体感空间变大。
进门右手边的壁灯,既实用也是装饰,YY想着后期在这里增设感应灯,进门时能更便捷些,不用黑暗中找开关。

沿着墙面做一组通顶收纳柜,不仅可以收纳鞋子,还能装下狗狗的小推车、吸尘器这样的杂物。YY打算在最右侧安装洞洞板,做成家政区,悬挂清洁工具。

旋转鞋架嵌入在柜体中,不仅容量变大,倾斜搁板也比传统搁板更方便拿取。

柜子特地定制成黑色,配金色把手,搭配设计师挑选的热带雨林图案壁纸,一进门就收获满眼精致感。

从玄关望向客厅,两处拱形元素相互映衬。

北京|上海「真实人家」
报名入口:

02
客厅:不做大吊顶,也可以复古!

在装修前,YY翻看了很多家居美图,但看着看着就感到疲劳和烦躁,失去了方向,经过和设计师密切沟通,逐渐描绘出理想家的图景。
YY并不想要纯粹的法式风格,觉得那样太繁复和华丽,这个家,似乎也无法简单地用一种风格来概括,而是审美和喜好一点点聚集而成的感觉和调性。

客餐厅一体化,背景墙是雕花石膏线,顶面则用竖线石膏线装饰,简约又不失精致,后者也不易积灰。
地面延续了玄关处的拼花木纹砖,烘托出复古的氛围感,同时耐脏、好打理,可以任凭两只狗狗抓挠。

筒灯+主灯配合着来,客厅区域选了不会压低层高的半吊灯,同时竖向的羽毛装饰也能有效防止落灰。
YY家只在需要的地方做了吊顶,挨着玄关的这面墙,吊顶恰好可以容纳电动幕布,凹形设计让人有种私人影院的沉浸感。

YY喜欢暖色,于是便在客厅墙面和顶面都刷上了淡淡的奶油色(色号见文末),再用棕色沙发、落地灯与同色系家居小物搭配,家里瞬间充盈
这里有个有趣的小故事:一开始YY想把客厅刷成黑色,但是考虑到可能会影响心情和爸妈的意见,就变成了没有存在感但有陪伴感的颜色。

一些软装细节之处也能看出设计师的用心,比如电视柜与木纹砖的色彩保持一致,甚至连插座边框、装饰画和小摆件都是棕色的。

03
厨房&餐厅:岛台是洄游动线的中心

改造前,厨房门开在短边上,对面就是小储物间,整体空间狭长,连冰箱都没地方放,采光也不好。先来组前后对比图感受一下。
改造前 VS 改造后
▼

改造后,YY拥有了梦寐以求的开放式厨房,餐厅与之相邻,用餐、待客都特别方便。围绕着岛台和餐桌,形成顺畅的洄游动线。

在布局上,遵循“拿-洗-切-炒”的最优动线原则,冰箱也不再是之前“委屈”放在厨房门外的小冰箱,而是三开门,实现囤货自由!左侧的是蒸箱和烤箱。

个人觉得厨房区域的吊顶也非常绝,框出操作台,带来分区感。
同时,为了配合黑色橱柜,将复古贯彻到底,瓷砖也是精挑细选的花砖和马赛克砖,后者因为是明净白色勾黑色细边,不让人眼晕。

因为平日里YY做饭频率不算高,厨房没有做太多柜子,一组地柜+一个吊柜+岛台足以收纳全部餐厨用具。地柜内部,是YY根据自己的需要在网上定制的拉篮。

开放式置物架既用来收纳,也是装饰。看细节,黄铜连接件和岛台上方的玻璃灯呼应起来了。

岛台柜体内凹,并在侧面预留了插座,YY想的是朋友来了可以围坐在这里吃个火锅。

对于餐厅,我就一个字:美!不论在哪个角度取景,都是杂志大片。吊灯同样选择了不易落灰的款式,餐桌则拥有复古感柱式桌腿,几把不重样的中古餐椅,直线与弧线交织,让整个空间灵动起来。

要说最让我惊讶的地方,便是YY家有很多柜子,定制柜已经能满足储物需求,成品柜在她那里更多是起装饰作用。


在介绍卧室前,给大家分享一下设计师为YY规划的动线,红色为访客动线,棕色为家务动线,绿色为生活居住动线。
点击查看大图
▼

生活居住围绕着卧室、衣帽间和卫生间,家务动线则从右上角的生活阳台、厨房连接到下方次卫旁的洗衣机,访客则主要在客厅、餐厅活动。
涉及私密的几个区域联系紧密,不用走几步路就能轻松到达,访客空间开敞,家的藏与露、动与静划分地恰到好处。

北京|上海「真实人家」
报名入口:

04
主卧:连房顶都要刷成复古粉

卧室没有改动格局,却仍然收获了“换头式”改造,平平无奇的空间,在色彩加持下成为复古感满满的理想栖息地。
改造前 VS 改造后
▼

最大胆的尝试在于墙面和顶面,包括主卫墙面,通刷脏粉色,柔而不腻;简洁石膏线+绝美雕花,在现代与古典找到平衡,就是YY想要的不繁复、不华丽的样子。
在两个墙面交接的阴角处,需要切割石膏线做细致的拼接,才能让视觉效果达到自然、不粗糙的状态。
卧室的另外一个特别之处,是主卫从外面看过去,在拐角处做了切角设计,在视觉上有扩容作用,内部也不会损失有效空间。

阳台墙体则做成了半弧形,让空间线条更加丰富、柔和。

对YY来说,卧室的静谧和氛围更重要,于是采用无主灯设计,明装筒灯+床头台灯+吊灯,多点位布光,带来夜间休憩的安稳,也照顾到阅读需要。

虽然是甜度没那么强的脏粉色,但如果卧室家具是原木色或白色,就会显得轻飘和寡淡,黑色家具中和了粉色的怯,让整体观感更为厚重,复古感也更浓。

最近一年火起来的蒂凡尼玻璃(这应该是我现实中见过的最美范例了),黑色线条勾勒的花纹与卧室其他软装相得益彰。虽然制作、安装过程没少让YY操心,但花费5000元达到这种效果,折腾一下也是非常值了。

主卫内部也是粉色与黑色的组合,尤其是地砖的选择,让人眼前一亮。因为主卫主要用来洗漱、化妆和泡澡,所以只贴了半墙瓷砖,搭配浴帘来防水。


整个家的设计,每处小细节,都是YY与设计师充分沟通后的成果,比如洗手池上方的双镜,又是一个绝妙的加分项。

主卫的收纳柜在不同高度做了不同方向的开放格,中间层用来摆放洗漱用具,下方可以容纳如厕用品。

北京|上海「真实人家」
报名入口:

05
没用的次卧,就变成衣帽间吧!

因为是一个人住,次卧利用率很低,干脆把它拆掉,次卫墙面向次卧移,次卧则做成衣帽间。
两个空间连接处造出凹形空间,打开格栅门板,里面放的是洗衣机,洗澡前换下的衣服丢进去,非常方便。

次卫的瓷砖用尽了(掏空了)YY的心思,美弧砖砌的半墙取代了传统的玻璃隔断或淋浴房,也能很好地实现干湿分离。

洗手池用了同款美弧砖,平日里用来给狗狗洗澡,深度刚好。话说,这个东西施工起来,会的工人很少,又很麻烦,YY的建议就是一定要慎重。

往最里面走便是衣帽间,走廊尽头的小空间,之前YY想的是摆一张小桌,能够做点自己喜欢的事,没看到合适的家具,现在暂时摆了一张狗狗的小床。

衣帽间三面都做了定制柜,这体量一个人用妥妥够了!

最后,也分享一下住范儿私宅设计师迟东婷想要对屋主和大家说的话:
“从前期设计阶段到最终项目落地,设计的过程,不仅仅只是设计师个人在输出,而是设计师与业主相互启发、相互给予灵感的合作状态,设计师能够与业主同频是很重要的,并且业主也非常相信和配合设计师,才能让项目能有这么高的还原度以及落地效果,好的设计真的就是相互成就,特别感谢YY给予我的信任与配合。”
案例设计效果图,达到了99%还原度
▼




今天我们的复古 Room Tour 就到这里啦,最后附上住范儿私宅设计师制作的收纳布局图、灯光点位图。
收纳布局
(绿色所示为收纳区)
▼

灯光点位
▼

北京|上海「真实人家」
报名入口:


